NZD $352.80 (+GST)
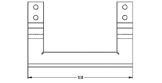
Blade type HSG-7
Suitable for use with Hot Knife HSG-7-VW
Brochure HSGM Hot Knives and Blades
Name
Email address
Enquiry